
3F | Interior Renovation | In construction
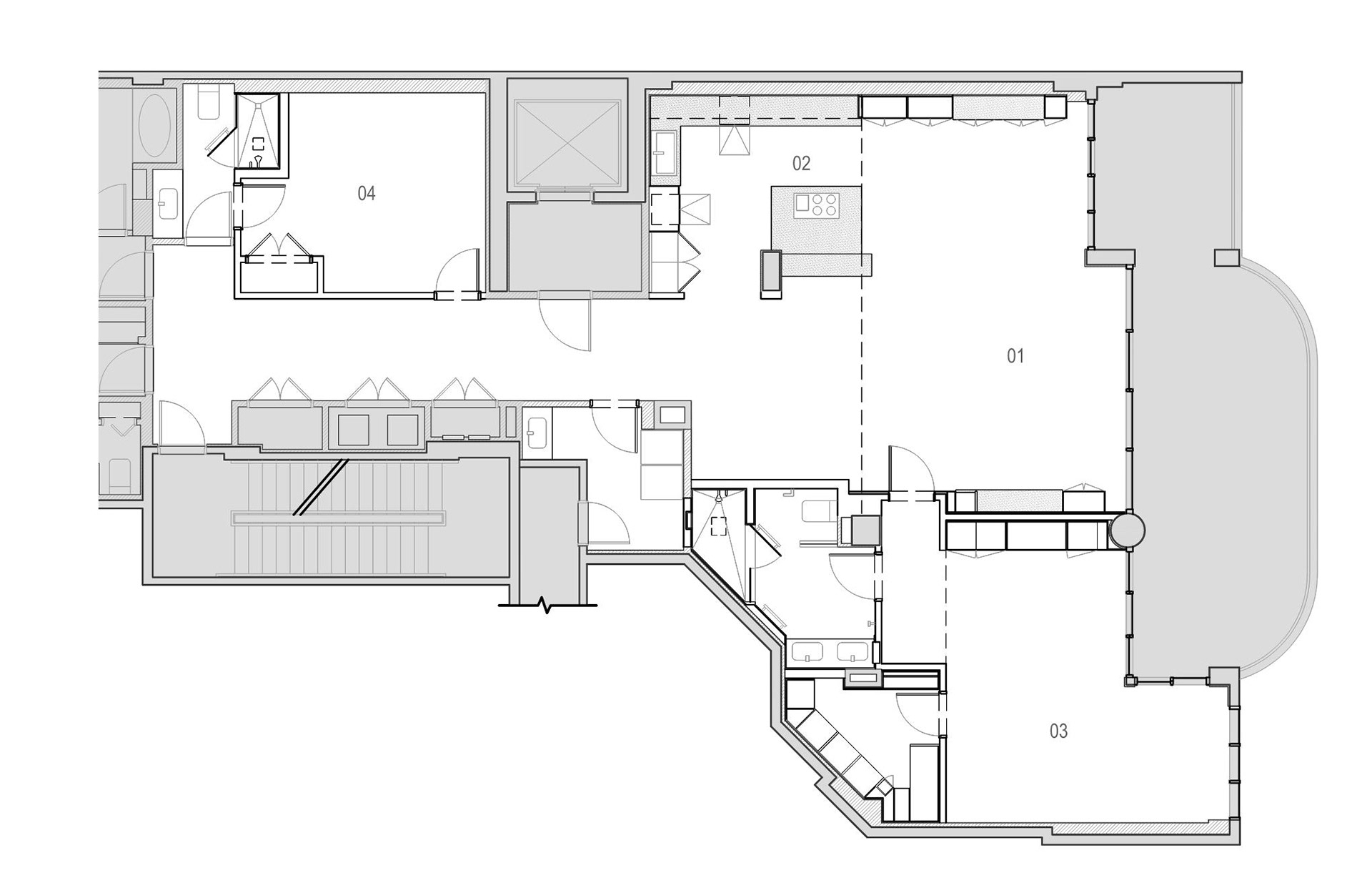
This interior renovation consisted of relocating the kitchen, adding a primary suite, and bedroom to an existing unit layout. The existing unit had excessive open space as it was used as a play room and not living space. In this renovation a kitchen was relocated so that it would open onto a smaller great room which over looks the ocean. A new bedroom takes the place of the previous kitchen. Adjacent the living spaces and proposed kitchen is a new primary suite that enjoys views of the ocean. Access to the primary suite is through a hidden door that is integrated within a millwork wall.
The project team consists of RLS design and consulting for MEP design and Wei Builders as the general contractor.

Demo plan
01 Existing kitchen
02 existing great room
01 Existing kitchen
02 existing great room

Proposed floor plan
01 Great room
02 Kitchen
03 Primary suite
04 Bedroom
01 Great room
02 Kitchen
03 Primary suite
04 Bedroom


