
Barn Haus | New Construction | Concept Phase
Designed for an RV enthusiast and a lover of the outdoors, this modern take on a farm style single family residence is designed to be meet the needs of both worlds. The design offers RV storage and RV workshop with ample ceiling space and floor area on one side of the house and automobile garage and covered carport on the other. Sandwiched in between is a double height great room and kitchen with maximized glazing looking out over nature and a pool deck.
A game room and family room loft overlook the double height great room. The primary bedroom suite is isolated on one extremity of the house, while all other sleeping rooms are located off the family room on the second floor. A private terrace off the family room opens up to the night sky to allow for star gazing on clear nights.
The design of the house uses gable frames inset to one another to create rhythm and break up the massing.


First floor plan
01 Great room 07 2 Car garage
02 Kitchen 08 Laundry
03 Office 09 Cabana bath
04 Primary suite 10 Car port
05 Workshop 11 Pool
06 RV port
01 Great room 07 2 Car garage
02 Kitchen 08 Laundry
03 Office 09 Cabana bath
04 Primary suite 10 Car port
05 Workshop 11 Pool
06 RV port

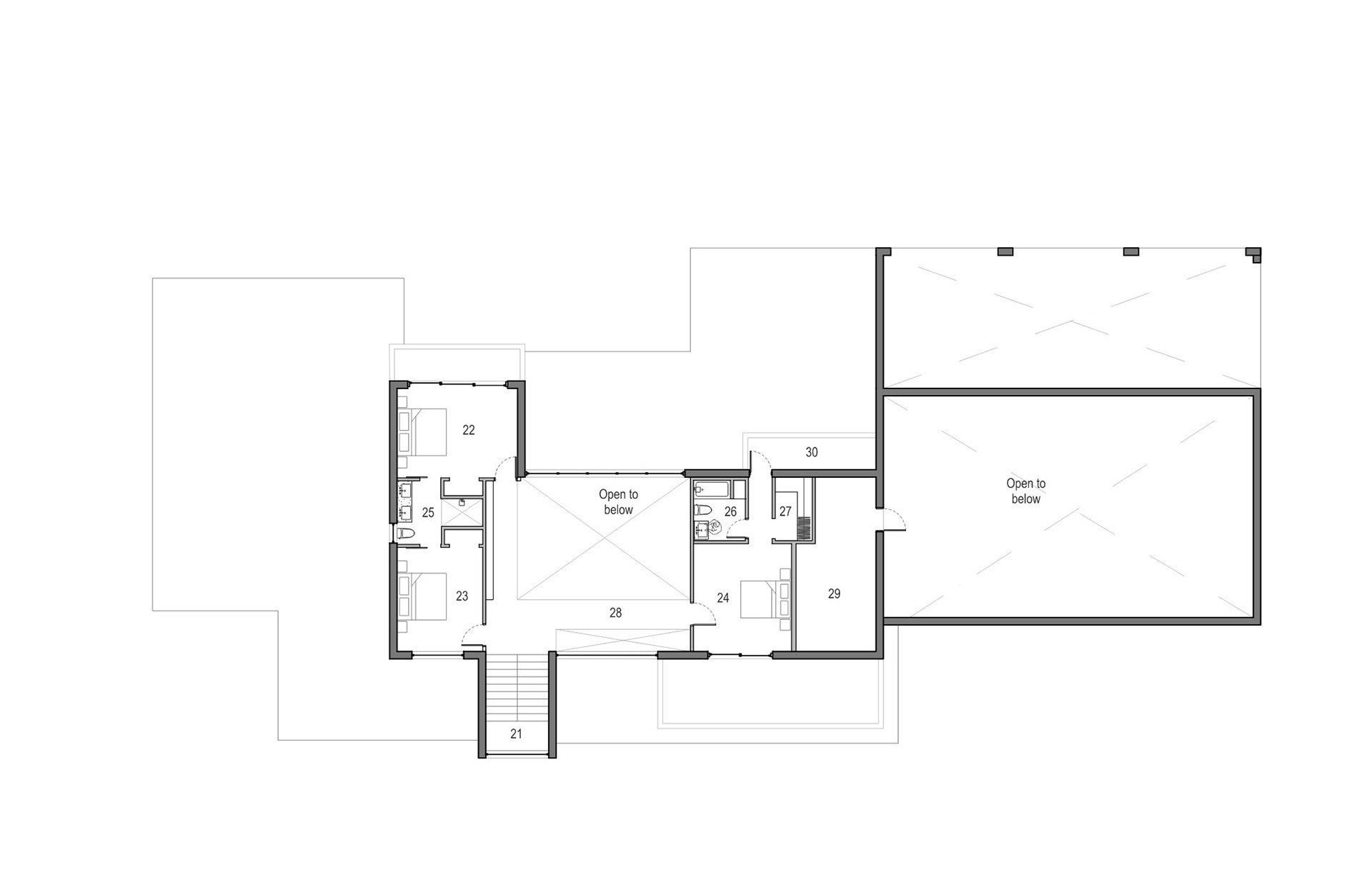
Second floor plan
12 Family room 18 Bedroom
13 Game room
14 Workshop storage
15 Terrace
16 Bedroom
17 Bedroom
12 Family room 18 Bedroom
13 Game room
14 Workshop storage
15 Terrace
16 Bedroom
17 Bedroom

Façade optioneering
Various façade styles were presented to the client which considered interior ceiling, sun exposure, and aesthetics
Various façade styles were presented to the client which considered interior ceiling, sun exposure, and aesthetics

Axonometric Drawings